Locale Commerciale a Albano Sant’AlessandroVia Tonale

via Tonale Albano Sant'Alessandro Bergamo

Vendita €2.100.000 - Locale Commerciale
2412 1350 mq

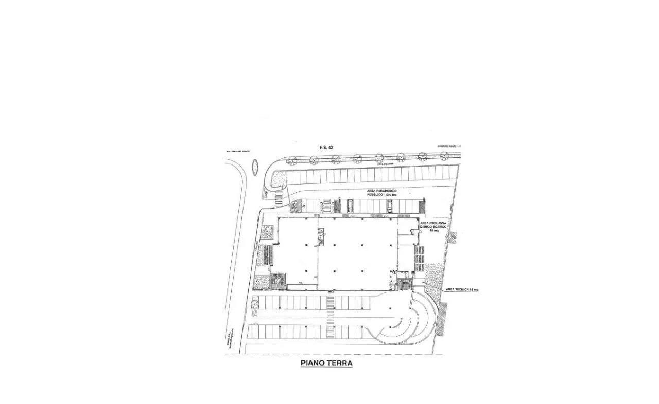
Fronte strada con ampio parcheggio in zona di forte passaggio e con ottima visibilità Immobile commerciale di circa mq 1400 con finiture adeguate comprensivo di piastrellatura, servizi igienici per il pubblico, blocco servizi igienici e spogliatoi per dipendenti, controsoffittatura. L’immobile è costituito da -superficie di circa mq.1.000 con possibilità di locazione con richiesta di canone annuo di € 100.000,00+ iva -negozio di circa mq.350 a reddito, già locato contratto di locazione in corso con canone annuo di € 47.000,00+iva

Dettagli aggiuntivi

  • Classe Energetica: D
  • IPE: 120
  • Cod.: 2412
  • Nr Locali: 0
  • Nr Camere Letto: 0
  • Sup. Mq: 1350
  • Prezzo: € 2.100.000,00
Richiedi informazioni su questo immobile
Nome
Telefono
Il tuo messaggio
Iscriviti alla newsletter


Confermo di aver preso visione e accetto l'informativa sulla privacy.