Attico a BergamoCentro Storico Attico su due livelli

Bergamo

Vendita Trattativa Riservata - Attici di lusso bergamo centro
2573 280 mq 4 Camere da letto 2 Bagni

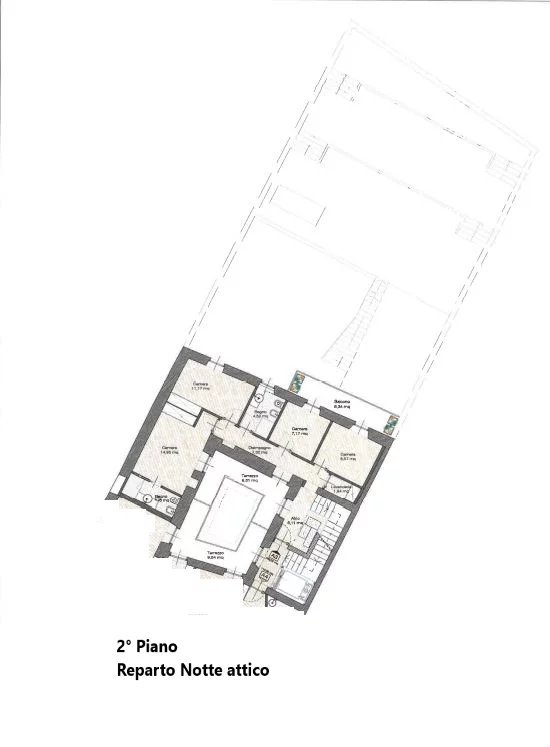
In zona rinomata centro storico appena sotto le mura di Città Alta, meraviglioso attico su due piani di nuova costruzione con possibilità di creare la propria abitazione su misura, con finiture personalizzabili e di alto livello, impianti di ultima generazione, domotica e tutti i confort moderni. Attico di circa mq. 280 composto all’ultimo piano da ampio soggiorno, cucina abitabile, salotto e bagno, tutti con affacci diretti alla meravigliosa terrazza di circa mq. 80, con le ampie vetrate che donano luminosità agli ambienti. Al secondo piano camera con bagno en suite, altre 3 camere da letto, bagno, lavanderia, balcone e terrazzo. Possibilità di acquistare a scelta box singolo o doppio.

Dettagli aggiuntivi

  • Classe Energetica: A4
  • IPE: 20
  • Cod.: 2573
  • Nr Locali: 6
  • Nr Camere Letto: 4
  • Sup. Mq: 280
Richiedi informazioni su questo immobile
Nome
Telefono
Il tuo messaggio
Iscriviti alla newsletter


Confermo di aver preso visione e accetto l'informativa sulla privacy.

Video dell'immobile

Immobili Simili