Attico a BergamoVia Angelo Maj

via angelo maj Bergamo

Vendita €650.000 - Attici di lusso bergamo centro
1256 160 mq 3 Camere da letto 2 Bagni

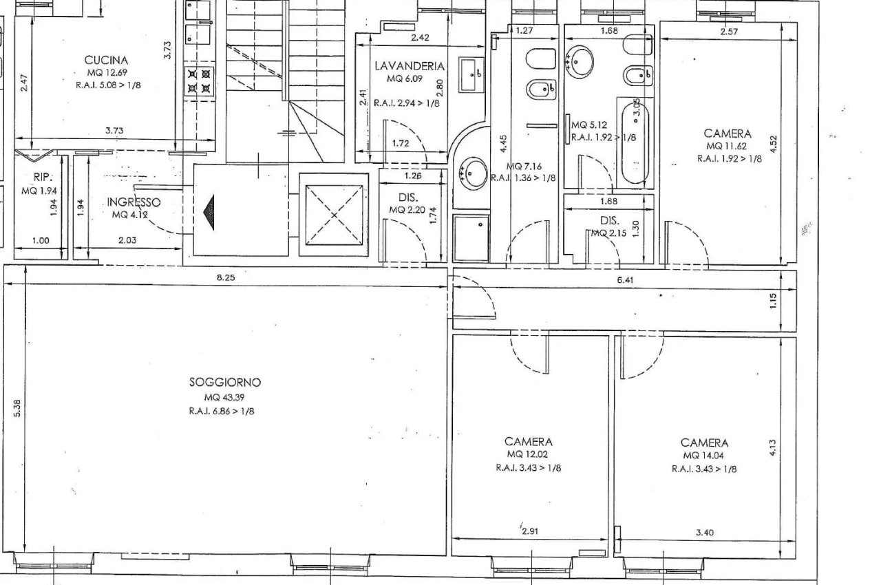
In signorile palazzo servito da ascensore e da portineria vendesi attico 160 mq così composto: ingresso che dà su un ampio e luminoso soggiorno che si affaccia su uno splendido terrazzo vivibile di circa 30mq, ampia cucina abitabile, tre camere da letto, due bagni ed una lavanderia. La proprietà si completa di un box doppio. Possibilità di acquistare anche un box singolo o doppio.

Dettagli aggiuntivi

  • Classe Energetica: D
  • IPE: 115
  • Cod.: 1256
  • Nr Locali: 4
  • Nr Camere Letto: 3
  • Sup. Mq: 160
  • Prezzo: € 650.000,00
Richiedi informazioni su questo immobile
Nome
Telefono
Il tuo messaggio
Iscriviti alla newsletter


Confermo di aver preso visione e accetto l'informativa sulla privacy.

Video dell'immobile

Immobili Simili