Villa a BergamoViale Albini

viale Albini Bergamo

Vendita Trattativa Riservata - Ville di lusso bergamo centro
2370 1000 mq 4 Camere da letto 3 Bagni

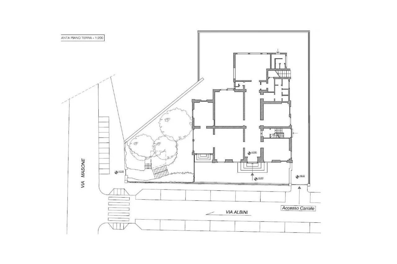
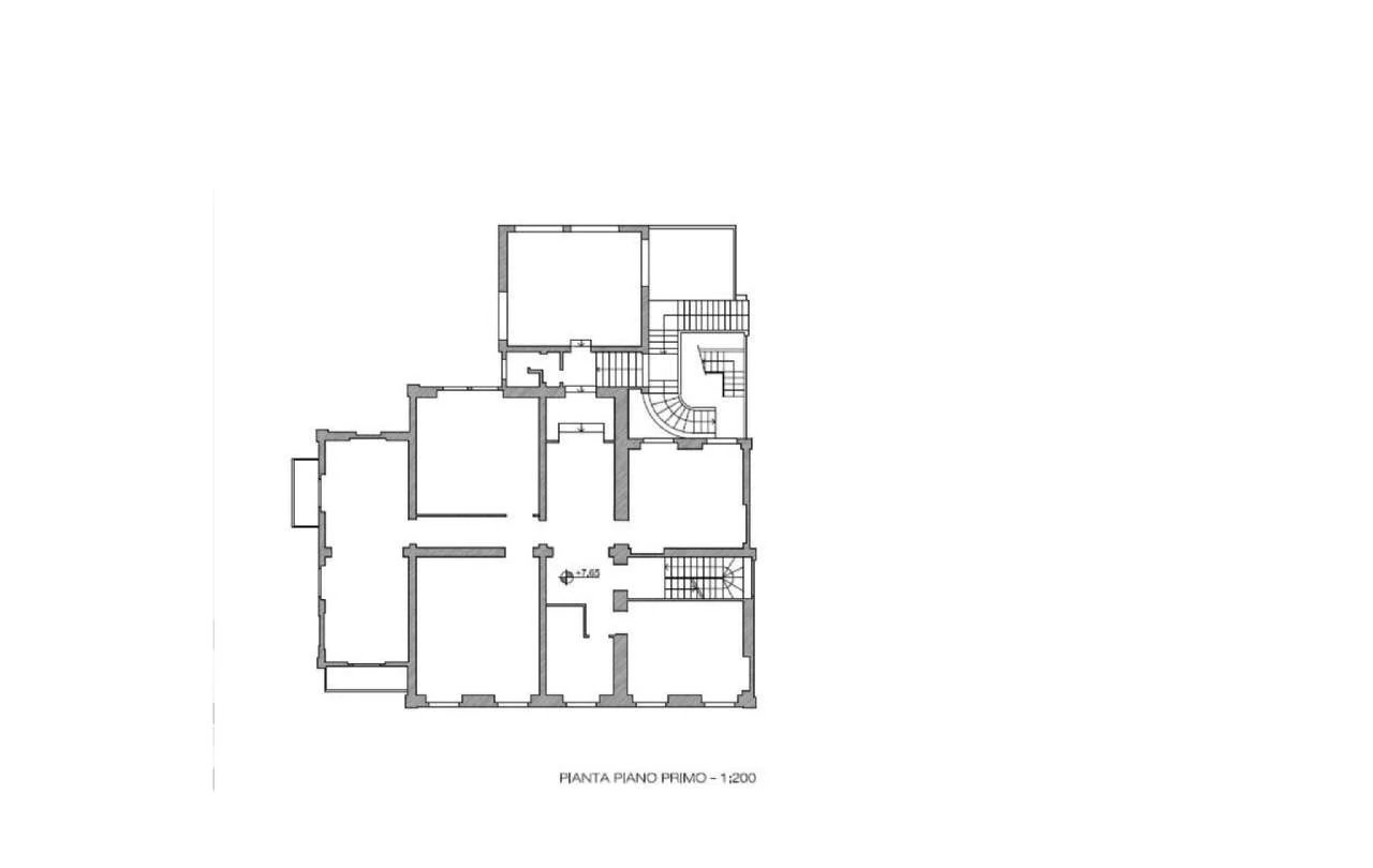
Trattasi di fabbricato di pregio, edificato ai primi del ’900 con facciate dal disegno ricercato, più recentemente ristrutturato e ampliato aggiungendo un corpo di fabbrica sul retro. Si trova all’angolo tra le via Masone e Albini, in una delle zone centrali più signorili della città di Bergamo, posta appena sotto la Città Alta. Occupa un’area di circa 800 Mq. Gli ingressi sono due: uno pedonale, posto in corrispondenza del civico 16 di via Masone e uno carrabile, posto in via Albini. Il fabbricato copre una superficie di circa 330 Mq. Le aree scoperte sono in buona parte occupate dal giardino. E? disposto su quattro piani: tre fuori terra e uno seminterrato. Le superfici (lorde) sono le seguenti: ? Piano seminterrato Mq. 95 ? Piano terra (rialzato) Mq. 330 ? Piano primo Mq. 290 ? Piano secondo Mq. 290 Occupato per anni da un istituto scolastico cittadino, attualmente è disabitato. Può essere utilizzato sia a scopi residenziali che a scopi direzionali. Necessita di intervento manutentivo importante (sistemazione della copertura e delle facciate, adeguamento igienico e impiantistico interno, adeguamento delle finiture interne) che verrà attuato in dipendenza del tipo di uso al quale sarà destinato. E’ possibile quindi, in questa fase, modificare anche l’assetto interno dei locali, in risposta alle esigenze del potenziale inquilino/acquirente.

Dettagli aggiuntivi

  • Classe Energetica: G
  • IPE: 250
  • Cod.: 2370
  • Nr Locali: 8
  • Nr Camere Letto: 4
  • Sup. Mq: 1000
Richiedi informazioni su questo immobile
Nome
Telefono
Il tuo messaggio
Iscriviti alla newsletter


Confermo di aver preso visione e accetto l'informativa sulla privacy.

Video dell'immobile

Immobili Simili