Casale a BergamoVia Magrini

via Magrini Bergamo

Vendita Trattativa Riservata - Casale
2266 2200 mq 100 Bagni

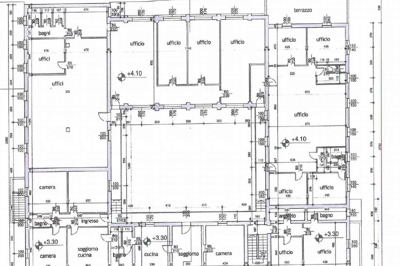
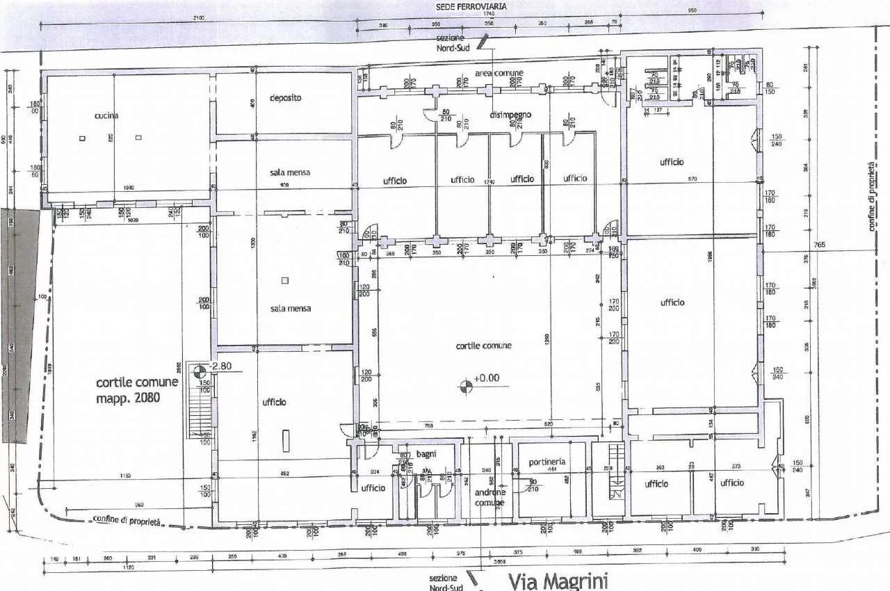
Stabile terra cielo da ristrutturare con progetto già approvato di circa 2200 mq. suddivisi su tre livelli : piano terra mq. 937, piano primo circa 815 mq. e piano secondo circa 448 mq. Rizzetti Immobiliare è un agenzia immobiliare che ha ville esclusive a Milano, Bergamo e in tutta Italia. Trova la casa dei tuoi sogni! Rizzetti Immobiliare a Bergamo e Milano è un’agenzia immobiliare nata nel 1995, data dalla quale la società può vantare di aver gestito con grande competenza e discrezione ogni genere di trattativa, ponendo sempre la massima cura su ogni singolo cliente. Il mercato delle case di lusso è un settore che da tempo attira molto interesse in città d’arte come Bergamo o metropoli energiche e vitali come Milano, e la compravendita di immobili di prestigio, per la nostra azienda, è anche un modo per incidere positivamente sulla vita del territorio: attici, appartamenti monolocali, bilocali, trilocali, quadrilocali, mansarde, loft, palazzi storici, ville, villette, uffici, capannoni e terreni (agricoli, commerciali e residenziali) situati a Bergamo, Milano e provincia. Offrirvi il meglio, per noi, è un istinto professionale. Da sempre, infatti, Rizzetti Immobiliare si distingue per la facilità di comunicazione con la clientela, e la capacità di stabilire con questa un’intesa profonda e costruttiva. Tutto questo, grazie ad una filosofia di vendita e di comportamento basata sulla concretezza e sulla trasparenza che ci permette di saper interpretare i desideri e le esigenze di ogni cliente, costituendo uno dei più grandi punti di forza. Rizzetti Immobiliare, con sede sia a Bergamo che Milano, si propone e valuta immobili di prestigio come attici, appartamenti, ville e villette, edifici residenziali e commerciali su tutto il territorio tra Bergamo e Milano.

Dettagli aggiuntivi

  • Classe Energetica: G
  • IPE: 250
  • Cod.: 2266
  • Nr Locali: 20
  • Sup. Mq: 2200
Richiedi informazioni su questo immobile
Nome
Telefono
Il tuo messaggio
Iscriviti alla newsletter


Confermo di aver preso visione e accetto l'informativa sulla privacy.

Video dell'immobile