Appartamento a BergamoVia Magrini

via Magrini Bergamo

Vendita Trattativa Riservata - Multilocale
2441 2200 mq 10 Bagni

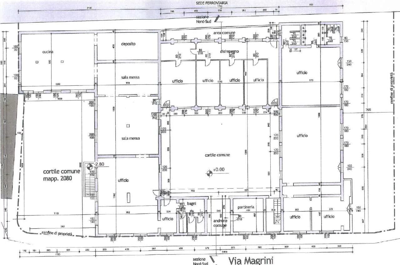
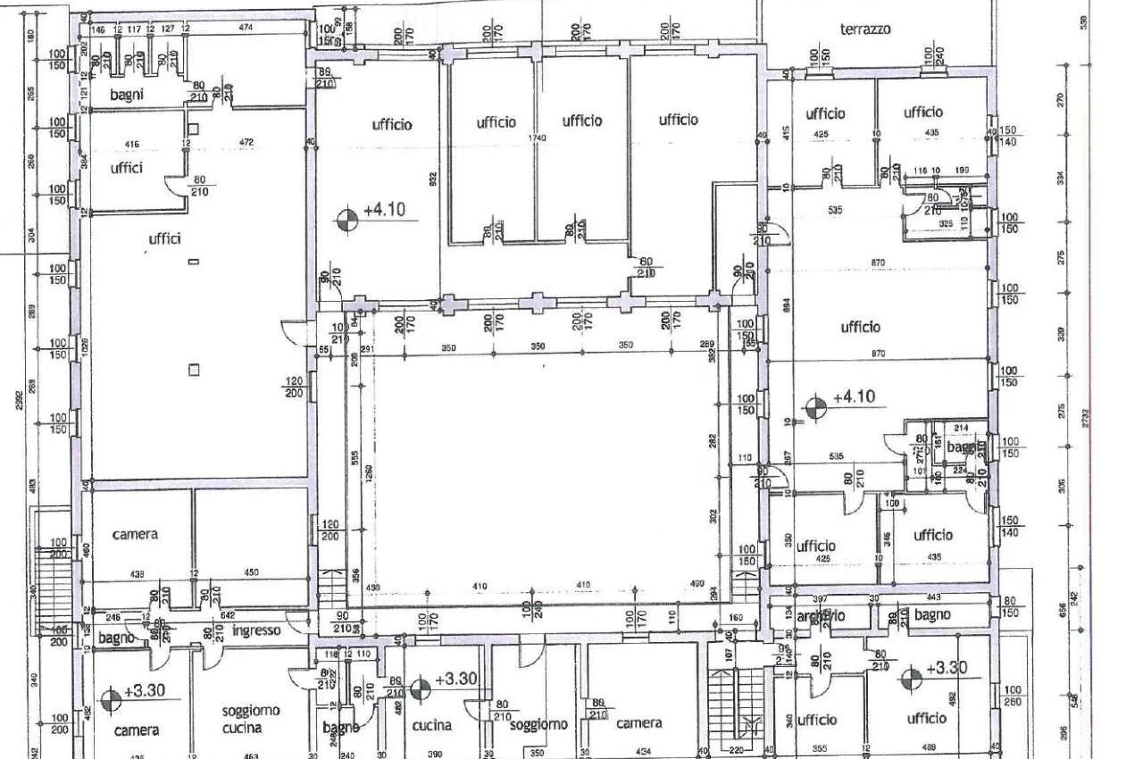
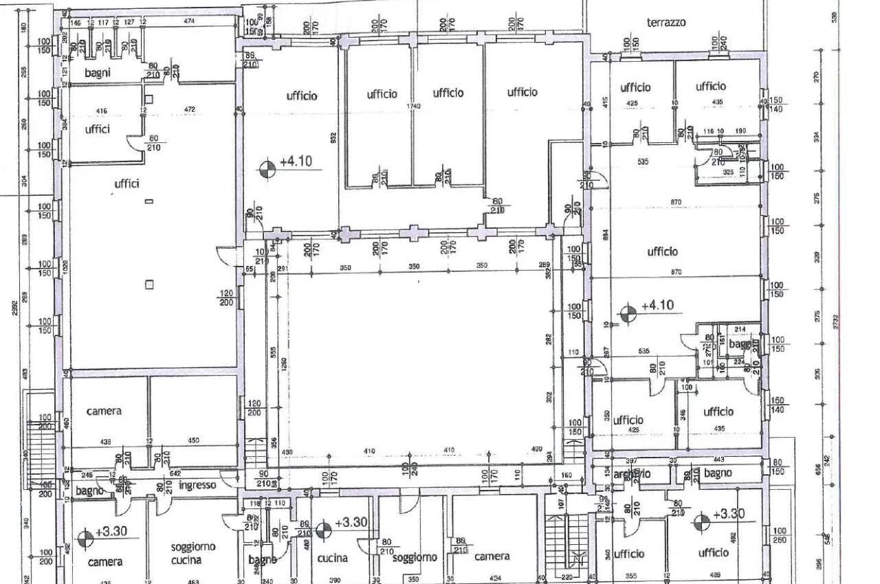
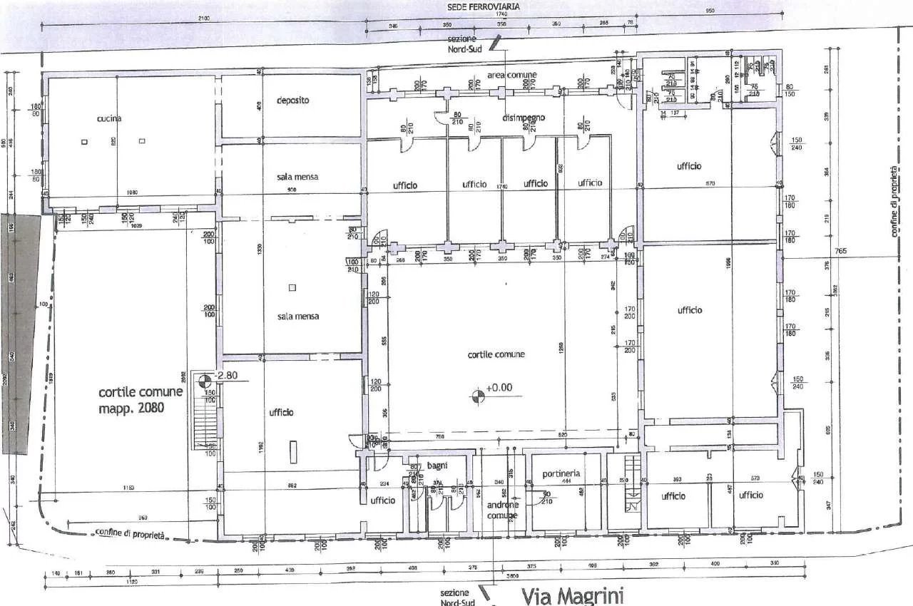
Bergamo – via Magrini In posizione strategica per l’accesso alle principali reti stradali e autostradali, rimanendo nel contempo a pochi minuti dal centro della città così come dalla stazione, in zona altamente servita da supermercati , scuole e università, quindi ideale come investimento, proponiamo: Stabile terra cielo di circa 2200 mq. da ristrutturare totalmente, con progetto già approvato. La metratura si suddivide su tre livelli : piano terra mq. 937, piano primo circa 815 mq. e piano secondo circa 448 mq. Soluzione molto interessante, da vedere!

Dettagli aggiuntivi

  • Classe Energetica: G
  • IPE: 250
  • Cod.: 2441
  • Nr Locali: 10
  • Sup. Mq: 2200
Richiedi informazioni su questo immobile
Nome
Telefono
Il tuo messaggio
Iscriviti alla newsletter


Confermo di aver preso visione e accetto l'informativa sulla privacy.

Video dell'immobile

Immobili Simili