Attico a BergamoVia Pradello

via Pradello Bergamo

Vendita €900.000 - Attici di lusso bergamo centro
2055 280 mq 4 Camere da letto 3 Bagni

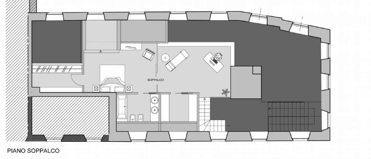
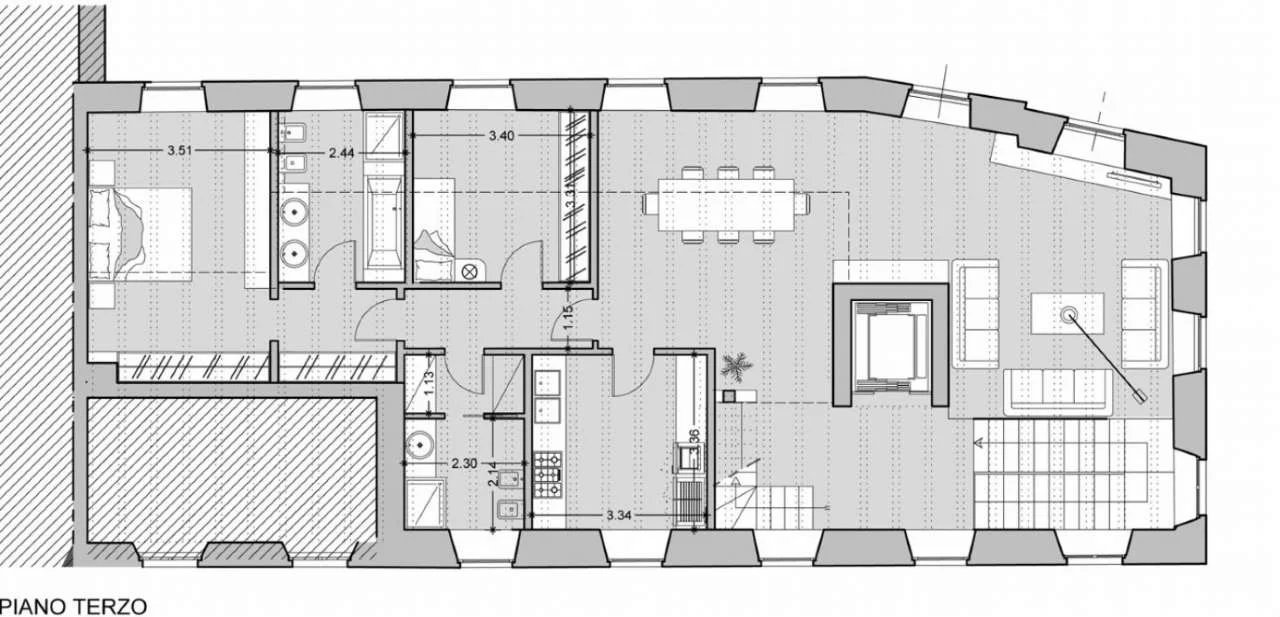
Appartamento inserito all’interno di un intervento conservativo di un bel palazzo d’epoca: l’opera, frutto di sapiente lavoro dell’Arch. Pino Giavarini, è di grande prestigio nelle finiture e nel capitolato d’eccezione, mentre la posizione centrale e l’arretramento rispetto a Via Verdi garantiscono tranquillità e silenzio. Meraviglioso appartamento di 178 mq posto al terzo e ultimo piano, che occupa il perimetro intero del palazzo. Aperto su 4 lati, molto luminoso, ascensore con sbarco diretto in casa. L’immobile si sviluppa al piano terzo di 178 mq e, attraverso scala di design, si accede al soppalco di 57 mq, con giochi di tutta altezza strepitosi, sviluppando cosi un grande quadrilocale con doppio soggiorno, cucina abitabile, 3 bagni. Possibilità di acquisto di box.

Dettagli aggiuntivi

  • Classe Energetica: B
  • IPE: 48
  • Cod.: 2055
  • Nr Locali: 5
  • Nr Camere Letto: 4
  • Sup. Mq: 280
  • Prezzo: € 900.000,00
Richiedi informazioni su questo immobile
Nome
Telefono
Il tuo messaggio
Iscriviti alla newsletter


Confermo di aver preso visione e accetto l'informativa sulla privacy.

Video dell'immobile

Immobili Simili